Офисы 900 м²
900 000 ₽/мес.
1 000 ₽ за м²
1 комнаты | 4 этаж
Кулибина, 3
Карта
Панорама
Аренда Офиса 900м² на ул. Кулибина 3
№ 7433
Площадь:
900 м²
900 000 ₽
1 000 ₽ за м²
в месяц
Дмитрий
+7 (905) 665-54-84
Написать сообщение
Предложить свою цену
Адрес
Нижний Новгород, Советский р-н, Кулибина, 3
Этаж
4
Комнаты
1
Отделный вход
Охрана
Парковка: есть подземка
Кондиционер
Часы работы 24ч
Водопровод
Высота потолков: 3
Мощность сети 300 кВт
Аренда офисов на ул. Кулибина 3, срок сдачи 4 квартал 2021, Советский район.
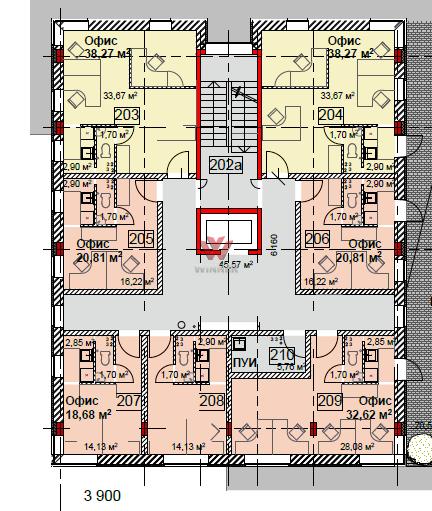
Бизнес-центр, состоит из 3-х башен, в каждой 4 этажа, 1 этаж = 350 кв.м., внизу помешение под паркинг.
На 1 уровне (2-й этаж) есть проход между башнями.
Помещения открытого типа, с панорамным остеклением, сдаются в черновом виде (shell and core) с готовым отоплением и подводом инжерерных сетей (вытяжка, свет, вода)
Имеются все необходимые технически-эксплуатационные элементы, отвечающие самым современным требованиям: центральное кондиционирование; приточно-вытяжная вентиляция с утилизацией тепла и центральным охлаждением, возможностью увлажнения воздуха; бесшумные лифты фирмы KONE.
Здание имеет эксплуатируемую кровлю на уровне 2 этажа, которая может быть использована Вами для создания комфортной рабочей и рекреационной среды.
Возможен ремонт под арендатора, с последующим возмещением, отделка внутренних помещений ‘под ключ’, на основе вашего дизайн-проекта, а также иных требований и технических условий.
Возможные площади от 350 до 5000 кв.м. ставка 1000 рублей, УСН, отдельно коммнальные.
Бизнес-центр, состоит из 3-х башен, в каждой 4 этажа, 1 этаж = 350 кв.м., внизу помешение под паркинг.
На 1 уровне (2-й этаж) есть проход между башнями.
Помещения открытого типа, с панорамным остеклением, сдаются в черновом виде (shell and core) с готовым отоплением и подводом инжерерных сетей (вытяжка, свет, вода)
Имеются все необходимые технически-эксплуатационные элементы, отвечающие самым современным требованиям: центральное кондиционирование; приточно-вытяжная вентиляция с утилизацией тепла и центральным охлаждением, возможностью увлажнения воздуха; бесшумные лифты фирмы KONE.
Здание имеет эксплуатируемую кровлю на уровне 2 этажа, которая может быть использована Вами для создания комфортной рабочей и рекреационной среды.
Возможен ремонт под арендатора, с последующим возмещением, отделка внутренних помещений ‘под ключ’, на основе вашего дизайн-проекта, а также иных требований и технических условий.
Возможные площади от 350 до 5000 кв.м. ставка 1000 рублей, УСН, отдельно коммнальные.
Помещения в этом здании
Подписаться на новые объекты в этом здании
Похожие объекты
Офисы
В жилом доме
900 000 ₽/мес.
1 000 ₽ за м²
Площадь
900 м²

Нижегородский р-н, площадь Свободы, 6
Офисы
В жилом доме
860 000 ₽/мес.
1 000 ₽ за м²
Площадь
860 м²

Советский р-н, проспект Гагарина, 50к9
Поиск других помещений
39